Izba Rzemieślnicza w Opolu ma do zaoferowania następujące pomieszczenia pod wynajem:
a) pomieszczenia biurowe zlokalizowane na parterze, o powierzchni 42,48 m2,
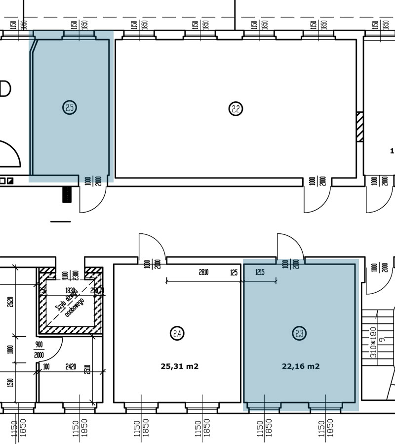
b) pomieszczenia biurowe na II piętrze, o powierzchni 22,16 i 14,89 m2,
c) pomieszczenie biurowe na IV piętrze, o powierzchni 12,76 i 12,94 m2.
Zainteresowanych zapraszamy do kontaktu mailowego pod adresem info@izbarzem.opole.pl lub telefonicznego 77 454 31 73 w. 28.
